Description
- A spacious three/four bedroom period home
- Located in the desirable coastal setting between the seaside towns of Folkestone & Hythe
- Close to the seafront and town of Hythe
- Allocated parking space
- Enclosed courtyard garden
- Gas central heating
- No forward chain
- Tenure - Freehold
- Council tax - Band A
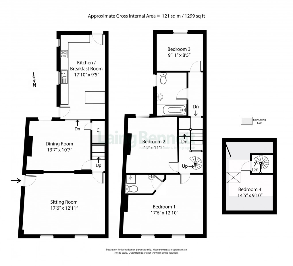
A unique and spacious three/four bedroom period home located in the desirable coastal setting between the seaside towns of Folkestone & Hythe. Just a short walk from the seafront and within easy reach of Hythe town centre. This charming property offers versatile accommodation comprising a welcoming living room, a separate dining room, and a generous kitchen/breakfast room. Upstairs, there are three well-proportioned bedrooms, including a main bedroom with en suite, a family bathroom, and a versatile fourth bedroom/attic room. Outside, the property benefits from side access, an enclosed courtyard garden, and convenient rear access leading to an allocated parking space. Further features include gas central heating and UPVC double glazing, making this an ideal home for those seeking character, comfort, and coastal living. No forward chain. EPC RATING = D
The accommodation comprises:Ground floor
Living room
17'0" x 12'10" (5.18m x 3.91m)
Dining room
13'0" x 10'8" (3.96m x 3.25m)
Kitchen/breakfast room
17'10" x 9'4" (5.44m x 2.84m)
First floor
Landing
Bedroom one
17'6" x 12'10" at widest points (5.33m x 3.91m)
En suite
Bedroom two
11'1" x 10'7" (3.38m x 3.23m)
Bedroom three
9'11" x 8'4" (3.02m x 2.54m)
Main bathroom
Second floor
Attic/bedroom four
12'0" x 9'10" at widest points (3.66m x 3.00m)
Outside
Allocated parking space
Side and rear courtyard
View Brochure
Floorplan
To discuss this property call our office:
Market your property
with Laing Bennett
Book a market appraisal for your property today. Our virtual options are still available if you prefer.