Description
- A charming four-bedroom home situated in North Lyminge
- A traditional white-painted brick exterior, steeply pitched tiled roof, and timber-framed gabled porch
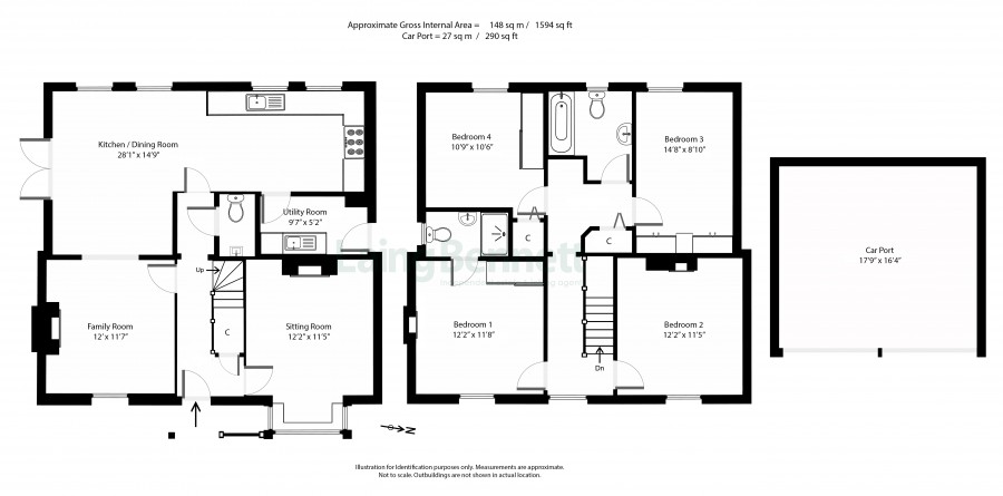
- Approx. 2,184 sq ft (203 sq m) of versatile living space
- Four reception rooms & four bedrooms
- Driveway with parking for up to 6 vehicles
- Tenure - Freehold
- Council Tax - Band E
Set along the picturesque North Lyminge Lane, this charming four-bedroom home offers an opportunity to embrace village life in one of Kent’s desirable rural communities. With its traditional white-painted brick exterior, steeply pitched tiled roof, and timber-framed gabled porch, the property exudes character and curb appeal. Backing onto countryside with views along the Elham Valley. Inside, the home unfolds across two spacious floors, offering approximately 2,184 sq ft (203 sq m) of versatile living space, thoughtfully designed for both comfort and functionality. The ground floor features a living room, a formal dining room, and a reception room with a beamed vaulted ceiling and wood-burning stove. A well-appointed kitchen which opens into a garden room, perfect for morning coffee or quiet reading. Upstairs, a bathroom and four bedrooms provide flexible accommodation for families, guests, or home working, with the main bedroom en suite and fitted wardrobe. Outside, the landscaped garden is a tranquil haven, large patio with pergola providing a covered seating area, bordered by mature hedging and featuring a detached summer house—ideal as a studio, gym, or retreat. The front of the property has a beautifully landscaped cottage garden with manicured hedge and a heringbone path leading to the front porch. Driveway with parking for up to six vehicles. Located within walking distance of village amenities, scenic countryside walks, and excellent transport links to Canterbury and London. EPC RATING = TBC
SituationThis property is located in 'North Lyminge Lane', a sought after no through road in the village of Lyminge. The village offers amenities including; Convenience Shop, Doctors surgery, Chemist and sought after Primary School. The village offers various clubs and societies and there are good bus links to both Canterbury and Folkestone. Lyminge is a thriving community with lots of activities for all ages. In the nearby town of Folkestone there are mainline railway stations with High Speed services to London with an Approx. journey time of 53 minutes. Close to the M20 and Channel Tunnel.
The accomdation comprises
Ground floor
Storm porch
Entrance hall
Living room
17' 3" x 10' 10" (5.26m x 3.30m)
Dining room
17' 10" x 11' 8" (5.44m x 3.56m)
Reception room
19' 7" x 14' 0" (5.97m x 4.27m)
Garden room
15' 8" x 12' 0" (4.78m x 3.66m)
Kitchen
12' 5" x 11' 11" (3.78m x 3.63m)
Rear lobby
Shower room
First floor
Landing
Bedroom one
12' 11" x 12' 1" (3.94m x 3.68m)
En suite shower room
Bedroom two
14' 5" x 8' 10" (4.39m x 2.69m)
Bedroom three
11' 7" x 8' 7" (3.53m x 2.62m)
Bedroom four
9' 3" x 8' 1" (2.82m x 2.46m)
Bathroom
Outside
Cottage style front garden
Driveway with parking for up to six vehicles
Accessed with a right of way over the neighbour's driveway
Large rear garden backing on to countryside
Summer house
11' 9" x 9' 10" (3.58m x 3.00m)
View Brochure
Floorplan
To discuss this property call our office:
Market your property
with Laing Bennett
Book a market appraisal for your property today. Our virtual options are still available if you prefer.