Description
- High-quality finish throughout
- Spacious living/dining room with dual glazed doors
- Stunning kitchen/breakfast room with granite worktops
- Welcoming hallway with covered entrance
- Luxurious main bedroom with built-in wardrobes and en suite
- Family bathroom with both bath and separate shower
- Versatile top-floor bedroom/office
- Integral garage with utility area
- Tenure - Freehold
- Council Tax - Band F
This impressive home offers a high-quality finish throughout, with light-filled, spacious accommodation arranged over three floors. A covered entrance and door leads into a welcoming hallway with elegant tiled flooring, underfloor heating and oak doors. The generous living/dining room is a standout feature, with dual sets of glazed doors, two skylights and fireplace, creating a bright yet cosy space that flows seamlessly to the rear garden. The superb kitchen/breakfast room is fitted to a high specification with granite worktops, integrated appliances, a breakfast bar and a sunny bay window. A stylish cloakroom and an integral garage with a utility area complete the ground floor. Upstairs, the first-floor landing provides a study area and leads to three beautifully presented bedrooms, including a luxurious main suite with built-in wardrobes and a stylish en-suite shower room. The family bathroom is equally impressive with a bath and a separate shower. A further staircase leads to the top floor, offering another light and bright bedroom/office with door to large loft storage space. With underfloor heating downstairs and radiators on the first & second floors, oak flooring, and recessed lighting throughout, this home combines contemporary elegance with exceptional comfort, ideal for modern family living. EPC Rating = C
SituationThis property is situated in the popular 'School Road' in Saltwood close to Hythe. The village of Saltwood is only a short distance up the hill offering an active village community, newsagents/general store, The Castle Hotel, a Michelin star restaurant, village hall, highly regarded primary and secondary schools, the latter with performing art status. The town is a cinque port with a bustling centre which is brimming with bespoke shops, coffee shops, pubs and restaurants. There is a Waitrose and Sainsbury’s. The property is conveniently close to the High Street, Royal Military Canal and beach.Folkestone lies to the East with High Speed Rail service to London, with a journey time to St Pancras of less than an hour. The M20 motorway network and the Channel Tunnel Terminal at Cheriton are within easy reach. There are great bus services to many wonderful destinations such as the Cathedral City of Canterbury (approximately 18 miles) and the historic town of Rye (approximately 22 miles).
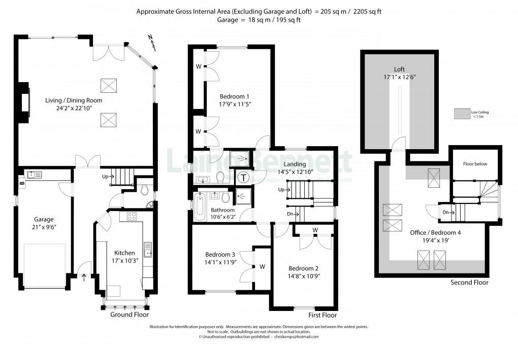
First floor
Entrance hall
Living/Dining room
24' 2" x 22' 10" (7.37m x 6.96m)
Kitchen
17' 0" x 10' 3" (5.18m x 3.12m)
WC
First floor
Landing
14' 5" x 12' 10" (4.39m x 3.91m)
Bedroom one
17' 9" x 11' 5" (5.41m x 3.48m)
En suite shower room/WC
Bedroom two
14' 8" x 10' 9" (4.47m x 3.28m)
Bedroom three
14' 1" x 11' 9" (4.29m x 3.58m)
Shower/bathroom/WC
10' 6" x 6' 2" (3.20m x 1.88m)
Second floor
Bedroom four/office
19' 4" x 19' 0" (5.89m x 5.79m)
Loft area
17' 1" x 12' 6" (5.21m x 3.81m)
Outside
Integral garage with utility area
21' 0" x 9' 6" (6.40m x 2.90m) Integral garage with utility area approached over brick paved driveway
Attractive garden
View Brochure
Floorplan

To discuss this property call our office:
Market your property
with Laing Bennett
Book a market appraisal for your property today. Our virtual options are still available if you prefer.