Description
- A charming and bright four-bedroom home
- Dating back to the 1700's, this unlisted property is full of history
- In recent years, it has been transformed into an ideal family home
- Set within beautifully enclosed, mature gardens of approximately 0.4 Acre
- Spacious garage/workshop and ample off-road parking
- No forward chain
- Council tax - Band G
- Tenure - Freehold
This charming and bright four-bedroom home offers a perfect blend of comfort and character. With inglenook fireplaces and exposed timbers, it exudes timeless appeal. Dating back to the 1700's, this unlisted property is full of history and intrigue, having once served as the village schoolhouse. In recent years, it has been transformed into an ideal family home, perfect for those seeking to live the quintessential village lifestyle. Set within beautifully enclosed, mature gardens of approximately 0.4 of acre, the property also features a spacious garage/workshop and ample off-road parking. No Chain. EPC RATING = E
SituationThe property is situated in the heart of the most sought after village Stelling Minnis, a wonderful location which is designated as an area of outstanding natural beauty with a large area of open "Minnis" or common land, and plenty of areas to enjoy walking, cycling and hacking. The ever popular Rose & Crown pub and the village store/post office are close by. There is also a popular primary school and a bus service which runs through the village. The historic Cathedral City of Canterbury is (Approx. 8.5 miles). The Port town of Folkestone (Approx. 13.3 miles) and town of Ashford have a High Speed service to London. Channel Tunnel terminal is (Approx. 13.3 miles) The M20 connection to the motorway network is (Approx. 7.4 miles).
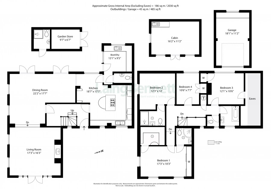
Ground floor
Entrance porch
Entrance hall
Living room
14' 4" x 13' 3" (4.37m x 4.04m)
Dining room
13' 7" x 13' 0" (4.14m x 3.96m)
Kitchen/breakfast room
20' 10" x 15' 6" (6.35m x 4.72m)
Rear lobby
Shower room/WC
Landing
Bedroom one
13' 10" x 13' 0" (4.22m x 3.96m)
Bedroom two
13' 4" x 10' 5" (4.06m x 3.17m)
Bedroom three
15' 5" x 8' 7" (4.70m x 2.62m)
Bedroom four
15' 10" x 5' 8" (4.83m x 1.73m)
Family bath/shower room/WC
10' 7" x 5' 11" (3.23m x 1.80m)
Outside
Garden
Glorious well enclosed gardens approaching 1/4 of an acre. Old brick coal shed
Garage/workshop and plenty of off-road parking
View Brochure
Floorplan

To discuss this property call our office:
Market your property
with Laing Bennett
Book a market appraisal for your property today. Our virtual options are still available if you prefer.